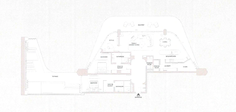
Diese 2-Schlafzimmer-Superluxuswohnung ist der Inbegriff von Raffinesse und Eleganz. Ideal für Familien und Investoren, die die perfekte Kombination aus Komfort und Stil suchen, bietet diese Wohnung eine Reihe von Premium-Merkmalen, die sie vom Rest abheben. Vom geräumigen Wohnzimmer mit bodentiefen Fenstern, die eine atemberaubende Aussicht bieten, bis hin zur Gourmet-Küche, die mit erstklassigen Geräten ausgestattet ist, wurde jedes Detail sorgfältig bedacht, um ein wahrhaft luxuriöses Wohnerlebnis zu schaffen. Die beiden Schlafzimmer sind großzügig geschnitten und bieten viel Stauraum, während die beiden Bäder mit modernen Armaturen und Oberflächen ausgestattet sind. Mit dem Zugang zu einer Reihe von Annehmlichkeiten wie einem Fitnesscenter, einer Dachterrasse und einem 24-Stunden-Concierge-Service bietet diese Wohnung wahrhaftig das Nonplusultra des Luxuslebens. Verpassen Sie nicht die Gelegenheit, ein Stück Luxus in dieser exklusiven Lage zu besitzen!